京都市伏見区 近鉄京都線 向島駅の駅前の、向島ニュータウンというマンションに、弊社のマンションリフォームのモデルルームが、完成いたしました。


築39年のマンションですが、間取り・水廻り機機・内装など全面的にリフォームをしたので、すかっり綺麗に、快適なマンションになりました。
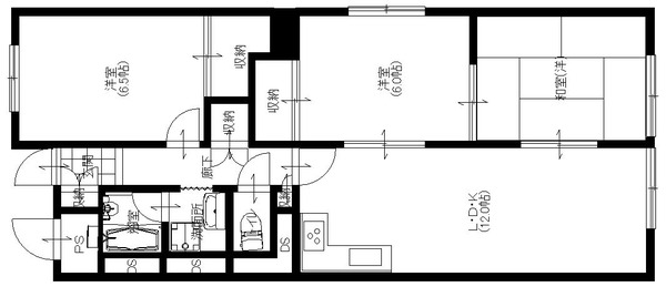
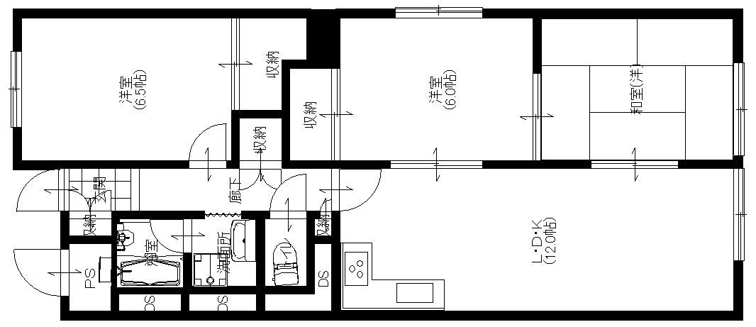
25~30年以上前のマンションは、ベランダのある南側に居室がとってあって、家族が集まるダイニングやリビングは、部屋の中央にあって、狭い上に、昼でも暗くて、陰気臭い間取りが多いのが、特徴です。
【リフォーム前】
【リフォーム後】
工事前の室内です。
リビングが、縦に長く幅がないので、テーブルやソファーなどの家具を置くと、かなり狭い印象になってしまいます。
リビングから、キッチンが丸見えなので、よほどきれいに片付けておかないと生活感が出てしまいます。
洗面・脱衣場に扉がなく、カーテンだけなので、年頃の娘さんだとちょっと不安なんじゃないでしょうか。
廊下~脱衣場~ユニットバスの間に、各々、結構段差がありました。




キッチンは、対面式のレイアウトにしたので、リビングからキッチンの内部は、見えないけれど、キッチンからは、リビングにいる家族が、見渡せます。
キッチン横に、冷蔵庫スペースを設けて、その奥に、以前デッドスペースだったところに収納を設けました。
洗面・脱衣場です。入口に扉を付けて、廊下からの段差も最小にして、システムバスへの入口は、バリアフリーにしました。
洗面台は、パナソニック製 90cm幅のカウンタードレッシング。
25~30年以上前のマンションは、ベランダのある南側に居室がとってあって、家族が集まるダイニングやリビングは、部屋の中央にあって、狭い上に、昼でも暗くて、陰気臭い間取りが多いのが、特徴です。
【リフォーム前】
【リフォーム後】
工事前の室内です。
リビングが、縦に長く幅がないので、テーブルやソファーなどの家具を置くと、かなり狭い印象になってしまいます。
リビングから、キッチンが丸見えなので、よほどきれいに片付けておかないと生活感が出てしまいます。
洗面・脱衣場に扉がなく、カーテンだけなので、年頃の娘さんだとちょっと不安なんじゃないでしょうか。
廊下~脱衣場~ユニットバスの間に、各々、結構段差がありました。




キッチンは、対面式のレイアウトにしたので、リビングからキッチンの内部は、見えないけれど、キッチンからは、リビングにいる家族が、見渡せます。
キッチン横に、冷蔵庫スペースを設けて、その奥に、以前デッドスペースだったところに収納を設けました。
洗面・脱衣場です。入口に扉を付けて、廊下からの段差も最小にして、システムバスへの入口は、バリアフリーにしました。
洗面台は、パナソニック製 90cm幅のカウンタードレッシング。
パナソニック製1216サイズシステムバス。大きなミラーとクリアー収納が3段とカウンター付きです。
給湯器は、20号の追焚き付き・自動お湯はり機能付きの給湯器です。
廊下には、下駄箱の横に、姿見ミラー付きのスリッパ収納と高さ2メーターの収納を新設しました。 廊下には、かなり収納スペースがあります。
各部屋にも、大型のクローゼットが付いています。
角部屋なので、キッチンの横の部屋には、東向きの窓があり、毎朝、新鮮な朝日が差し込みます。
トイレは、ウォシュレット付きの節水型トイレです。
実は、水道やガス配管も、既存配管への継ぎ足しではなく、新しく、大元のパイプスペースから引き直しているので、見た目だけでなく、機能でも、新築のマンションとなんら遜色はありません。
解体してみて解ったことですが、専有スペース内に、かなり無駄なデッドスペースが採られていました。
せっかくなんで、システムバスを設置する時や、洗面所を造り直す際に、極力デッドスペースを無くして、代わりに収納が出来るスペースを新設しました。
以上の全改装工事に係った費用は、税別で、390万円です。
このモデルルームは、6月からオープンハウスとして、展示しておりますので、是非、見学にお越し下さい。
給湯器は、20号の追焚き付き・自動お湯はり機能付きの給湯器です。
廊下には、下駄箱の横に、姿見ミラー付きのスリッパ収納と高さ2メーターの収納を新設しました。 廊下には、かなり収納スペースがあります。
各部屋にも、大型のクローゼットが付いています。
角部屋なので、キッチンの横の部屋には、東向きの窓があり、毎朝、新鮮な朝日が差し込みます。
トイレは、ウォシュレット付きの節水型トイレです。
実は、水道やガス配管も、既存配管への継ぎ足しではなく、新しく、大元のパイプスペースから引き直しているので、見た目だけでなく、機能でも、新築のマンションとなんら遜色はありません。
せっかくなんで、システムバスを設置する時や、洗面所を造り直す際に、極力デッドスペースを無くして、代わりに収納が出来るスペースを新設しました。
以上の全改装工事に係った費用は、税別で、390万円です。
このモデルルームは、6月からオープンハウスとして、展示しておりますので、是非、見学にお越し下さい。























コメント