我が国には、まだまだシェアハウスの概念が乏しいと言わざるを得ません。
賃貸住宅も、シェアハウスの概念でつくると、コンパクトにできるんですけどね。
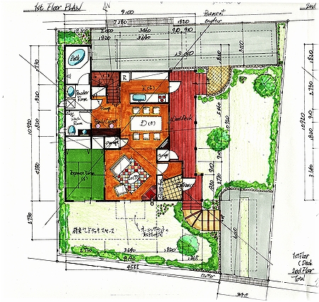
ここに示すプランは、これまでの賃貸住宅を輸入住宅でプランしたものです。
シェアには程遠いところですが、家をくっつけたらとか、壁を抜いたらとか考えると
夢が膨らみますね。
それでも、これまでの賃貸住宅とは、一線を画すものになると自負しております。
もちろん、外壁はレンガ積み、室内はドライウォールといった弊社のスタンダードを取り入れます。
付加価値にこそ、価値を見出す若いご夫婦がターゲットですね。
造ってみたい!
そんな風に思われましたら、一声掛けてくださいね。
◆連棟住宅プラン
1F・2F拡大平面図

1F全体平面図

2F全体平面図と正面図

◆個別住宅プラン
1F・2F拡大平面図

1F全体平面図

2F全体平面図

ぽちっとなおねがい!
↓

賃貸住宅も、シェアハウスの概念でつくると、コンパクトにできるんですけどね。
ここに示すプランは、これまでの賃貸住宅を輸入住宅でプランしたものです。
シェアには程遠いところですが、家をくっつけたらとか、壁を抜いたらとか考えると
夢が膨らみますね。
それでも、これまでの賃貸住宅とは、一線を画すものになると自負しております。
もちろん、外壁はレンガ積み、室内はドライウォールといった弊社のスタンダードを取り入れます。
付加価値にこそ、価値を見出す若いご夫婦がターゲットですね。
造ってみたい!
そんな風に思われましたら、一声掛けてくださいね。
◆連棟住宅プラン
1F・2F拡大平面図

1F全体平面図

2F全体平面図と正面図

◆個別住宅プラン
1F・2F拡大平面図

1F全体平面図

2F全体平面図

ぽちっとなおねがい!
↓


























