施工事例
2014年01月20日
リフォーム施工事例30
神奈川県川崎市多摩区 N邸
新規お客様
マンション
工事内容:タイル工事・塗装工事・防水工事etc
Before
After
1 2

1・2・・・足場工事
3 4 5


3・・・タイル打診。まずはタイルを打診して不良個所の確認
4・・・・ハツリ。タイルの不良個所を撤去
5・・・張替。下地処理をしたのち、新規タイルを施工
また、このほかにも部分的に注入工事も行いました
塗装工事
6 7 8


6・・・高圧洗浄
7・・・下塗りをした後、中塗り
8・・・上塗り
塗装完了
9 10

9・・・タイル面の薬品洗浄
10・・・タイル面を洗浄したのち、撥水剤を塗布して完了
シーリング工事
11 12 13


11・12・13・・・既存シーリングを撤去ののち、タイル目地・サッシュ廻り・躯体目地の打ち替え


シーリング完了
防水工事
14 15 16


14・・・高圧洗浄
15・・・下地処理
16・・・接着剤を塗ったのち、AVシート施工
17 18 19


17・・・AVシート目止め
18・・・ウレタン防水
19・・・トップ仕上げ
防水工事完了
その他にも階段・廊下の防滑シートを施工して


完了
無事工事も完了し、オーナー様も満足していただきました
![]()
ランクアップにご協力を
ポチッ
→
一日1回よろしく m__m ↓![]()
アンケートもやってみて
2013年06月03日
リフォーム施工事例29
新規お客様 マンション
工事内容:リノベーション
Before


After
1


1・・・まずは解体工事
2


2・・・そして、大工工事
3 4 5



3・4・5・・・その他、サッシュ工事、タイル工事、内装工事etc
そして、仕上がりがこちら





白をベースに所々濃い色を使うことでモノトーンな仕上がりに オーナー様も最初とは見違える仕上がりに、満足していただけました
ポチッ
→一日1回よろしく m__m ↓
アンケートもやってみて
続きを読む2013年04月01日
新築施工事例8
神奈川県川崎市高津区 K邸
新規お客様
構造:木造2階建
用途:個人住宅
外観 図面
外壁に石目調のサイディングを使用した、木造2階建の個人住宅。外構は天然石を使用したアプローチがアクセントに。
リビング

キッチンはIHコンロの対面型、床は床暖房を使用。
和室 主寝室

和室は純和室ではなく和洋折衷な空間に。
納戸 シューズインクローズ

納戸・シューズインクローズにはお客様自身で自由調整出来るように可動式の棚を設置。
UB 洗面所 トイレ


お風呂には換気乾燥機、洗面化粧台は75cmのシャワータイプ、トイレには手洗い器を設置。
また、リビング・和室・主寝室・洋室とすべて南側に窓があるので明るい空間に。
全体的に白を基調とし、明るく広いイメージに仕上がっています![]()
ランクアップにご協力を
ポチッ
→
一日1回よろしく m__m ↓![]()
アンケートもやってみて
2013年03月04日
リフォーム施工事例28
新規お客様
工場
工事内容:耐震補強
Before

After
1

1・・・まずは足場をかけ、既存外壁の解体
2 3


2・・・補強材の下地処理
3・・・新規鉄骨補強材を取り付け
4

4・・・外壁下地処理
5

5・・・外壁を復旧して、施工完了
ポチッ
→一日1回よろしく m__m ↓
アンケートもやってみて

2012年12月10日
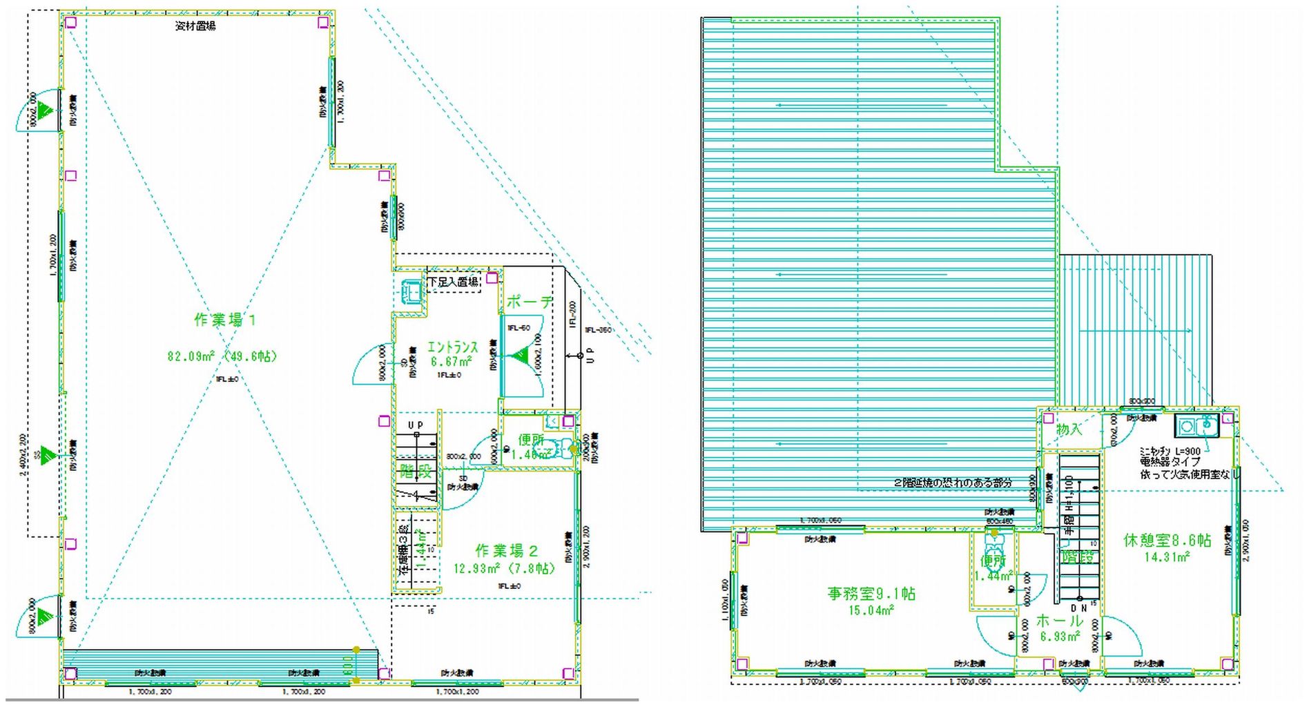
新築施工事例7
神奈川県横浜市都筑区 Y邸
新規お客様
構造:鉄骨2階建
用途:工場
外観 工場内

図面

事務室 休憩室

外観はALCに吹付けタイル。工場内の床は油等をよく使用するため、あえて粗めの仕上げに。
事務室・休憩室は窓を多めに、スッキリと明かり空間に。![]()
ランクアップにご協力を
ポチッ
→
一日1回よろしく m__m ↓![]()
アンケートもやってみて
