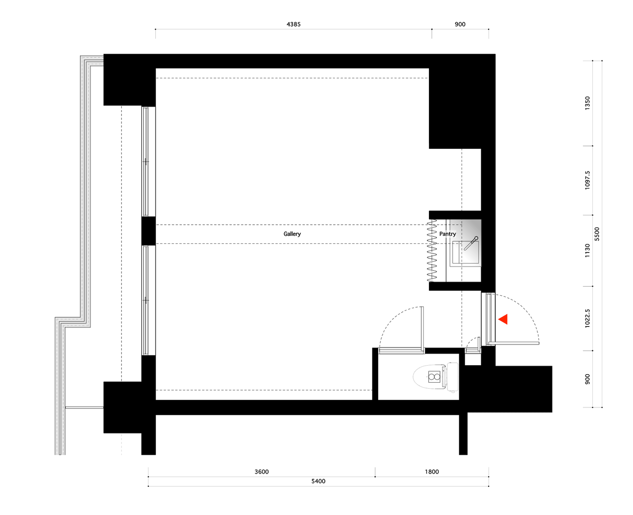
2019年05月11日 SPACE05が6月下旬にオープン! コメント数:0 コメント by spacehalo HALOに新しいスペースが誕生します。今回の床はモルタル仕上げになります。SPACE04同様です。場所はSPACE04の直上2階になります。広さは29.7㎡(トイレ・パントリーを含む)。料金は25,000円(消費税別)ご予約の受付をしております。よろしくお願いします。