
■ネット通販最大手のアマゾンが、より広い売り場を持つアマゾンゴーのような新たな店舗を建設中であることが分かった。
IT系メディアのギークワイアが報じたことによると、当局への許可申請で明らかになったのはシアトル・ダウンタウン東側にあるキャピトルヒル地区にある、アパートの一階部分となる場所(600 E. Pike St., Seattle WA 98122)だ。
近くには昨年10月にオープンしたばかりのホールフーズ・マーケット・マディソンブロードウェイ店(1001 Broadway, Seattle, WA 98122)があり、そこから北西へ徒歩で7分の距離(約500メートル)となっている。
また約2年前にオープンしたスターバックス・リザーブ・ロースタリー&テイスティングルーム(1124 Pike St, Seattle, WA 98101)から東へ徒歩で4分程度の距離でもある。
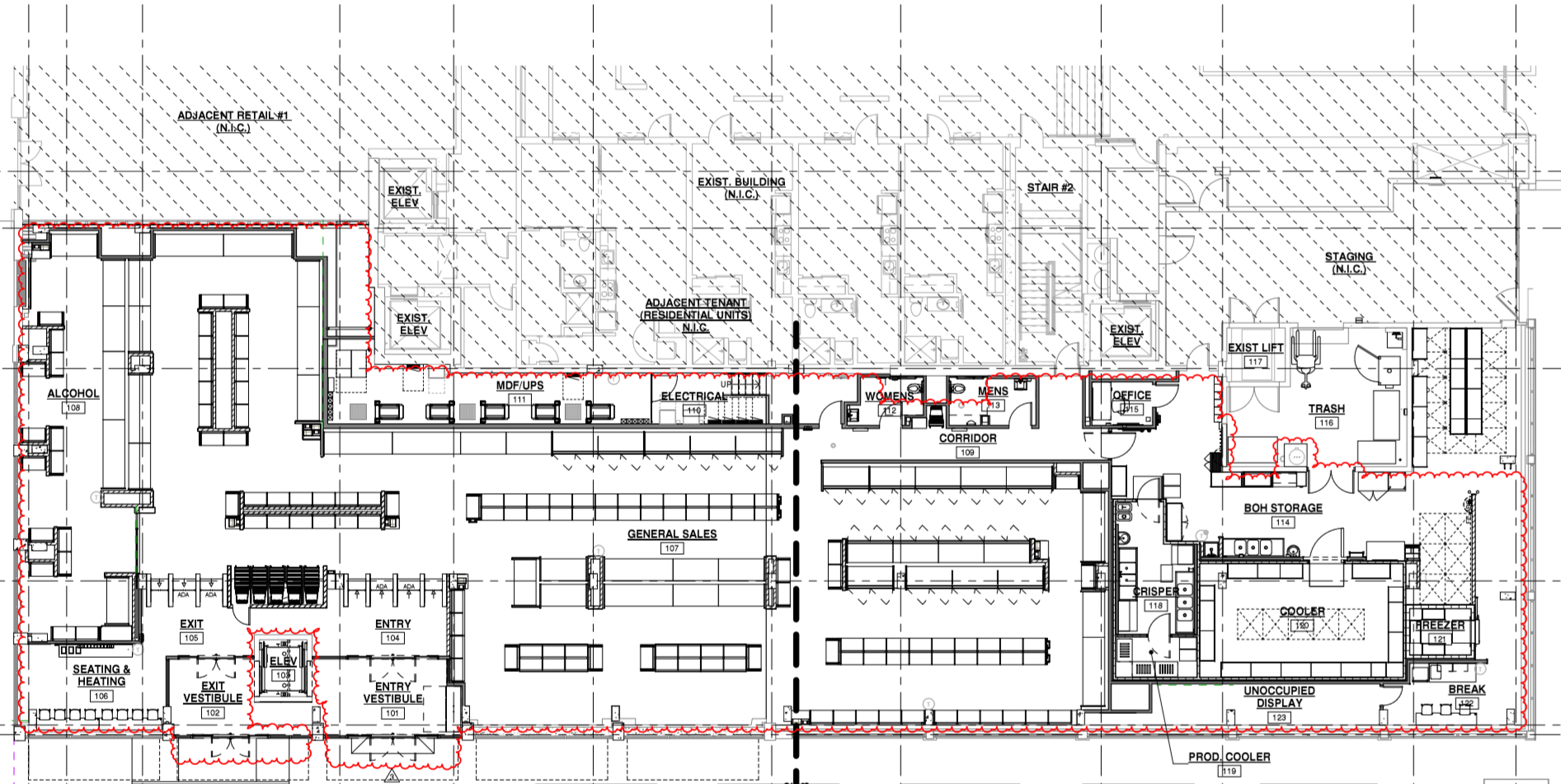
店舗面積は10,400平方フィート(約300坪)で、売り場は7,000平方フィート(約200坪)もあるのだ。
アマゾンゴーは最も広い面積でも2,300平方フィート(64坪)しかなく、多くが50坪以下となっている。
アマゾンゴーの3〜4倍の広さを持つ小売店の設計図面には入り口にアマゾンゴーのようなチェックイン用のゲートが見え、出口にも同様なゲートが設置されている。
店内には従来の小売店にあるようなチェックアウトレーンは描かれていないため、レジなし店舗とみられている。図面からアルコール販売も予定していることがわかっている。
キャッシャーフリーとも呼ばれるアマゾンゴーはスマートフォンにダウンロードした専用アプリのQRコードで入店する。チェックインするとゲートが開いて入店できるのだ。あとは購入したい商品を手に取り店を出ていくだけの「ジャスト・ウォーク・アウト(Just Walk Out)」となっている。
入店と同時に天井に設置されたカメラやセンサーによって利用者の行動が追跡される。棚にも重量センサーが装備され、商品を手に取る行動もトラッキングするようにもなっている。
店から持ち出した商品はアマゾン・アカウントにあるクレジットカードに自動的に課金される。カメラやセンサーで得たデータから商品の動きを把握し、人工知能(AI)のディープラーニングを駆使して正確に決済する。
アマゾンゴーはシアトルやシカゴ、サンフランシスコ、ニューヨークに13店舗あり、シアトルには4店舗を展開している。
すべての店舗がビジネスマンが利用することを目的に街の中心にあるのも特徴だ。
ニュースサイトのブルームバーグは昨年9月、アマゾンゴーが数年で3,000店舗展開になると報じた。
内部の情報筋からの話としてアマゾンゴーは今年末には大都市圏を中心に50ヵ所を展開し、2021年までには3,000店舗の展開を計画している。
ロイターは公文書や関係筋の話として空港ターミナルにオープンする可能性があることを伝えた。
一方、ウォール・ストリート・ジャーナル紙は情報筋の話として、アマゾンゴーが大型店をテストすることを報じた。
今年に入ってジョージア州アトランタのローカル紙がアマゾンゴーがアトランタ市内で12,000平方フィート(約340坪)に出店する可能性を報じたのだ。
アマゾンゴーの最新店とみられる店舗は現在、ガラスが白く塗られているため中の様子はのぞけないという。遅くとも数ヵ月以内にはミステリアスな店舗の詳細が明らかになるだろう。
