また新たなベリアス賃貸住宅の事業計画
が動き出します
。
今回、私共を事業パートナーに選定頂き
新たな賃貸事業計画を共に進めて下さる
のは、名古屋市在住のO様であります
。

そして、今回、O様の賃貸事業の計画地
(建築地)となるのは、「名古屋市内」
┅ではなく「小牧市内」であります
。
そう、今回のO様の賃貸事業は、ズバリ
チーム・ベリアスが、土地のご紹介から
賃貸住宅の設計プランニング+事業計画
&資金計画の作成、施主代行(サポート)
折衝業務、建物管理&事業経営面や税務
に関するコンサル等を全てセットにして
ご提案させて頂く事業企画┅いわゆる
「ランドセット企画」であります
。
















今回の計画地となる土地は、ベリアスの
不動産売買・管理チームメンバーである
国保住建さんから、市場に出す前の段階
から情報を入手させて頂き、プランの方
を事前作成し、且つ、(無理を言って)
非常~に値打ちな価格で、土地をご紹介
させて頂く事が出来ました。
小牧市内でも人気の学区内で、生活環境
抜群+名鉄小牧線の味岡駅も近い
。
【ありがとう
小久保社長
】

㈱国保住建HPは
コチラをクリック
㈱国保住建ホームページ
『土地売買・賃貸管理・地盤の調査&改良、
ご相談、何でも”
頂戴
”致します!!』
※梅田も色々と頼りにしております
















そして、今週の木曜。
O様との間で、今回の建物の建築に関する
工事請負契約を締結させて頂きました
。

今回、市場性・生活環境バッチリの土地を
購入して建築しますのは、ファミリー向け
戸建賃貸住宅2棟
であります。
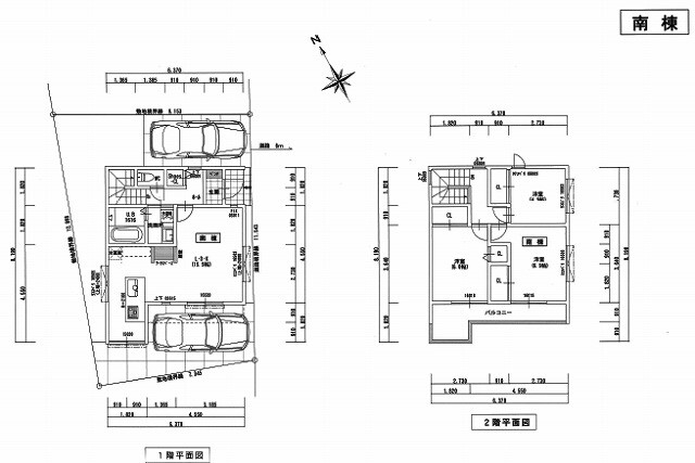
※敷地面積191.06㎡(57.8坪)
南北角地を分筆し2棟建築

”現時点
”の南北各棟のプランが
コチラ
※各棟共駐車スペースが2台分あります
。


(未着色(未配色)段階ですが)建物の
ボリューム&配置イメージが
コチラ。

改めましてO様。
この度は、私共の企画提案にご賛同頂き
誠にありがとうございました
。
土地のご紹介+事業計画をご提案させて
頂いてから、最終決断を下される迄の
スピードに、私、感服致しております。
必ずや(O様の)そのご判断とご期待に
報いるべく、そして、最高の結果をO様
にご提供出来る様、チーム一丸となって
全力で当計画に取組みます


これから、まだまだ打合せや各種手続きに
お時間やお手数をお掛けしますが、最高の
賃貸事業を実現致します
ので、引き続き
お付き合い、そして、ご協力の程、宜しく
お願い致します

が動き出します
今回、私共を事業パートナーに選定頂き
新たな賃貸事業計画を共に進めて下さる
のは、名古屋市在住のO様であります

そして、今回、O様の賃貸事業の計画地
(建築地)となるのは、「名古屋市内」
┅ではなく「小牧市内」であります
そう、今回のO様の賃貸事業は、ズバリ
チーム・ベリアスが、土地のご紹介から
賃貸住宅の設計プランニング+事業計画
&資金計画の作成、施主代行(サポート)
折衝業務、建物管理&事業経営面や税務
に関するコンサル等を全てセットにして
ご提案させて頂く事業企画┅いわゆる
「ランドセット企画」であります

今回の計画地となる土地は、ベリアスの
不動産売買・管理チームメンバーである
国保住建さんから、市場に出す前の段階
から情報を入手させて頂き、プランの方
を事前作成し、且つ、(無理を言って)
非常~に値打ちな価格で、土地をご紹介
させて頂く事が出来ました。
小牧市内でも人気の学区内で、生活環境
抜群+名鉄小牧線の味岡駅も近い
【ありがとう

㈱国保住建HPは
『土地売買・賃貸管理・地盤の調査&改良、
ご相談、何でも”
※梅田も色々と頼りにしております
そして、今週の木曜。
O様との間で、今回の建物の建築に関する
工事請負契約を締結させて頂きました

今回、市場性・生活環境バッチリの土地を
購入して建築しますのは、ファミリー向け
戸建賃貸住宅2棟
※敷地面積191.06㎡(57.8坪)
南北角地を分筆し2棟建築

”現時点
※各棟共駐車スペースが2台分あります


(未着色(未配色)段階ですが)建物の
ボリューム&配置イメージが

改めましてO様。
この度は、私共の企画提案にご賛同頂き
誠にありがとうございました
土地のご紹介+事業計画をご提案させて
頂いてから、最終決断を下される迄の
スピードに、私、感服致しております。
必ずや(O様の)そのご判断とご期待に
報いるべく、そして、最高の結果をO様
にご提供出来る様、チーム一丸となって
全力で当計画に取組みます

これから、まだまだ打合せや各種手続きに
お時間やお手数をお掛けしますが、最高の
賃貸事業を実現致します
お付き合い、そして、ご協力の程、宜しく
お願い致します