皆様、お疲れ様です
。
そして、ご無沙汰であります
。
7月から8月にかけて、かなりハードな
スケジュールが続きまして
、なかなか
当ブログの更新も出来ずにおりました。
(毎度の言い訳にはなりますが…)
ブログネタが無かった訳ではなく、書く
時間…いや、心の余裕ってものがありま
せんでした。…つまり、皆様、お察しの
通り、精神的にテンパった状態の日々が
続いておりました
。
今月に入っても、日々の状況というのは
正直、変わってはいないのですが、ここ
らでブログのアップ(更新)をしておき
ませんと、”下書きの状態”で書き貯めて
おりました8月中のブログネタ(話題)
の鮮度が落ちてしまうので、時間を作り
且つ、心を落ち着かせてビシッと(?)
書き綴ろうと(更新しようと)思った
次第であります

。
少々、リアルタイムを逸した話題・記事
の投稿が暫く続きますが、何卒、ご勘弁
願います
。















■8月10日のお話です

名古屋市西区香呑町にて新築工事が進んで
おります『カーサ・カンパーナ
』
(木造3階建 総戸数2戸の賃貸住宅)

上棟(中間検査)も無事に終えたこの日。
現場の方に、当物件の施主I様ご一家を
お招きし、主に電気設備工事関連の内容
についての確認・打合せを行いました。

建築途中とはいえ、施主様も建物の内部
をご覧になるのは、この日が”初”であり
建ち上がった(上棟を終えた)建物の
ボリュームを実感され『やっぱり、図面
を見て、頭の中で想像していた感じとは
迫力が違いますね~

』と一言。
建物内部の工事進捗状況も確認します。
屋根付(ビルドインタイプ)駐車場
奥の正面に玄関があります。
玄関扉には、LIXIL(TOSTEM)の
引戸(エルムーブ
)を採用
。

駐車スペースの天井高はかなりのもの。
EVコンセント・宅配BOXも設置します。

玄関の土間部分は、かなり広く、手洗い
器もここに設置します。

建物内部は、上棟後間もない事もあり
”まだまだこれから”という状態ですね。

上層階へと行き来する為の屋内階段は
まだ設置(造作)前でしたので、上階へ
行くのは、次回の視察の時まで遠慮する
ことにしました
。

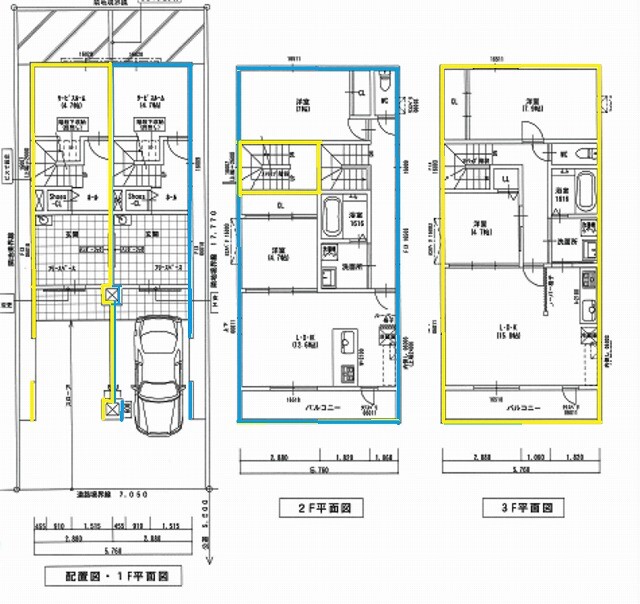
今回は、面積31坪の土地の有効活用。
2階建の戸建賃貸住宅1棟という形では
なく、あえて
”3階建2戸”という形に
しました。見所・差別化ポイントも随所
に盛り込まれております

【計画概要】
敷地面積:125.61㎡(約31坪)
建築面積: 75.11㎡(約23坪)
延床面積:211.39㎡(約64坪)

東側タイプ:1階と2階(青線囲部)
専有面積は、100.46㎡
西側タイプ:1階と3階(黄線囲部)
専有面積は、110.95㎡
東西の部屋共に、間取り分類としては、
2LDK+S…まあ、3LDKですね
・屋根付駐車場
・ペット共生可



建物完成イメージ



竣工は、来年の1月下旬を予定しており
ます(入居開始は、2月以降予定です
)

そして、ご無沙汰であります
7月から8月にかけて、かなりハードな
スケジュールが続きまして
当ブログの更新も出来ずにおりました。
(毎度の言い訳にはなりますが…)
ブログネタが無かった訳ではなく、書く
時間…いや、心の余裕ってものがありま
せんでした。…つまり、皆様、お察しの
通り、精神的にテンパった状態の日々が
続いておりました
今月に入っても、日々の状況というのは
正直、変わってはいないのですが、ここ
らでブログのアップ(更新)をしておき
ませんと、”下書きの状態”で書き貯めて
おりました8月中のブログネタ(話題)
の鮮度が落ちてしまうので、時間を作り
且つ、心を落ち着かせてビシッと(?)
書き綴ろうと(更新しようと)思った
次第であります
少々、リアルタイムを逸した話題・記事
の投稿が暫く続きますが、何卒、ご勘弁
願います
■8月10日のお話です
名古屋市西区香呑町にて新築工事が進んで
おります『カーサ・カンパーナ
(木造3階建 総戸数2戸の賃貸住宅)

上棟(中間検査)も無事に終えたこの日。
現場の方に、当物件の施主I様ご一家を
お招きし、主に電気設備工事関連の内容
についての確認・打合せを行いました。

建築途中とはいえ、施主様も建物の内部
をご覧になるのは、この日が”初”であり
建ち上がった(上棟を終えた)建物の
ボリュームを実感され『やっぱり、図面
を見て、頭の中で想像していた感じとは
迫力が違いますね~
建物内部の工事進捗状況も確認します。
奥の正面に玄関があります。
玄関扉には、LIXIL(TOSTEM)の
引戸(エルムーブ

EVコンセント・宅配BOXも設置します。

器もここに設置します。

”まだまだこれから”という状態ですね。

まだ設置(造作)前でしたので、上階へ
行くのは、次回の視察の時まで遠慮する
ことにしました

2階建の戸建賃貸住宅1棟という形では
なく、あえて
しました。見所・差別化ポイントも随所
に盛り込まれております

【計画概要】
敷地面積:125.61㎡(約31坪)
建築面積: 75.11㎡(約23坪)
延床面積:211.39㎡(約64坪)

東側タイプ:1階と2階(青線囲部)
専有面積は、100.46㎡
西側タイプ:1階と3階(黄線囲部)
専有面積は、110.95㎡
東西の部屋共に、間取り分類としては、
2LDK+S…まあ、3LDKですね
・屋根付駐車場
・ペット共生可


竣工は、来年の1月下旬を予定しており
ます(入居開始は、2月以降予定です
