9月16日
この日、現在、豊田市小坂町にて新築工事が進む
『ベリアスクラウン
』の仕様デザイン等の決定
会議を施主O様も交えて開催致しました
。

当物件は、ベリアスとして豊田市での実績第一号
となるという事もあり、そのプランやデザインに
関しては、いつもに増して、計画当初から、幾度
となく細かな修正や改良を繰り返してきました。

その結果、既に建物の外観デザインは勿論のこと
4部屋の間取りの方も、かなりの”拘りっぷり”
&”独創性&差別化度合い高め”となっており
ます
。
しかし、時間的にもそろそろ、物件の内容を確定
しなければならない段階となっており、この日で
全てを決定すべく全員がこの場に臨みました。

建物の外壁材として使用するサイディング
ボードの選定にもかなり苦慮しましたが、何とか
納得のいく商材の選択と、張り分けのパターン
まで決定することが出来ました



”外”の次は”中”
導入する住設機器や床材、建具、他諸々の内容に
ついても、皆の意見を出し合い、全体のバランスを
考慮しつつ、サンプルやカタログを見て、比較&
検討&選定をし、内容を決めていきました。
結局、この日、約4時間位の時間をかけて、ほぼ
全ての仕様と詳細内容(色やデザイン等)を決定
致しました。皆さん、本当~にお疲れ様でした

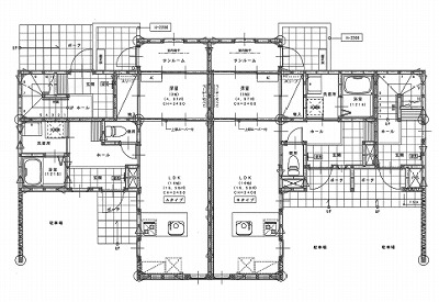
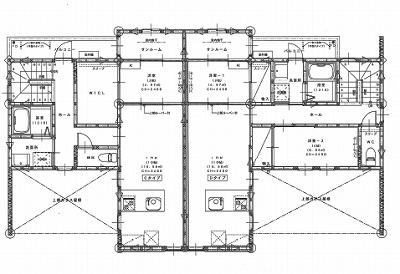
そして、この日の会議を経て、改良修正を加えた
平面配置計画図&外観イメージパースが上がって
きました。
これが"一応
"最終変更であり
確定図面及び外観パースとなります
。

計画当初のプランと比べると、細かな部分の
変更や大胆な改良を加えました
。

既に工程が進んでいる中で、各戸の玄関ホール
&土間スペースを拡張したり、2階のバルコニーを
拡張したりしたのは、流石に設計&工務の方から
大ブーイングものでありました



。

改めて仕様設備や内部装飾等の内容に関する
プレゼンボードの方も、作成&発表致しますが、
とりあえず建物本体のフォルムや外観デザイン、
各部屋の間取り等は、これにて確定致しました。


















(
10月1日現在の現場状況)
現場は、まだ基礎部分のみ出来上がった状態で

来週から建物の建て方へと工程は進む予定です。

ここは1階東部屋専用駐車スペース
。

この日、現在、豊田市小坂町にて新築工事が進む
『ベリアスクラウン
会議を施主O様も交えて開催致しました

当物件は、ベリアスとして豊田市での実績第一号
となるという事もあり、そのプランやデザインに
関しては、いつもに増して、計画当初から、幾度
となく細かな修正や改良を繰り返してきました。

その結果、既に建物の外観デザインは勿論のこと
4部屋の間取りの方も、かなりの”拘りっぷり”
&”独創性&差別化度合い高め”となっており
ます
しかし、時間的にもそろそろ、物件の内容を確定
しなければならない段階となっており、この日で
全てを決定すべく全員がこの場に臨みました。

ボードの選定にもかなり苦慮しましたが、何とか
納得のいく商材の選択と、張り分けのパターン
まで決定することが出来ました

導入する住設機器や床材、建具、他諸々の内容に
ついても、皆の意見を出し合い、全体のバランスを
考慮しつつ、サンプルやカタログを見て、比較&
検討&選定をし、内容を決めていきました。
結局、この日、約4時間位の時間をかけて、ほぼ
全ての仕様と詳細内容(色やデザイン等)を決定
致しました。皆さん、本当~にお疲れ様でした

そして、この日の会議を経て、改良修正を加えた
平面配置計画図&外観イメージパースが上がって
きました。
確定図面及び外観パースとなります

変更や大胆な改良を加えました

&土間スペースを拡張したり、2階のバルコニーを
拡張したりしたのは、流石に設計&工務の方から
大ブーイングものでありました

プレゼンボードの方も、作成&発表致しますが、
とりあえず建物本体のフォルムや外観デザイン、
各部屋の間取り等は、これにて確定致しました。

(
現場は、まだ基礎部分のみ出来上がった状態で

来週から建物の建て方へと工程は進む予定です。

