10月5日(友引)
また新たな賃貸アパートプロジェクトが春日井市
内で始動する事となりました

。

本日午前
、春日井市の地主I様のご自宅にて、
I様にとって"2棟目"となるベリアス賃貸住宅
の工事請負契約を締結させて頂きました
。

今回の事業計画は、ズバリ
"築古学生向けアパートの建替え"
計画であります
。
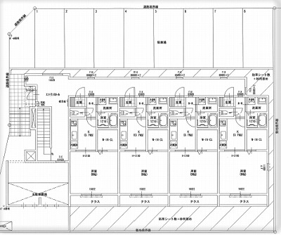
I家の為、長きに亘り頑張ってきました築30年
近い2階建て(全10室)ワンルームアパートを
今回、この様な
1Kタイプ8室のアパートに
リニューアル致します。
主となる入居対象者(ターゲット)は、これ迄
同様"学生さん"であります
。

ミニミニさんの尽力により、既に現入居者の皆様
との立退き交渉・各種手続きの方も順調に進んで
おり、予定としましては、来年の4月頃を目処に
既存アパートの取り壊しに着手させて頂きます。
そして
こちらが
(現時点の)計画建物の外観イメージ
の簡易パース。事業計画のご提案段階で、I家の
皆様に計画建物のフォルムのみを確認して頂く為
だけに、無着色の状態(つまりモノクロ状態)で
ご提示したところ
(建物の)形も格好イイし、
色もこのまんま"まっ白"でイイじゃない


と、アレコレ配色を考える前に、思いのほか気に
入って頂いてしまいました
。

ということで、早くも今回の建物のベースカラー
は、白色でデザインを進めることになりました。
建物の完成予定は、再来年の春なので、まだまだ
先ではありますが、かなり目立つ建物になる事は
間違いありません
。
I様、本日は誠にありがとうございました
。
今回の計画は、少しだけ長丁場とはなりますが
何卒、宜しくお願い致します
。
また新たな賃貸アパートプロジェクトが春日井市
内で始動する事となりました

本日午前
I様にとって"2棟目"となるベリアス賃貸住宅
の工事請負契約を締結させて頂きました

今回の事業計画は、ズバリ
"築古学生向けアパートの建替え"
計画であります
I家の為、長きに亘り頑張ってきました築30年
近い2階建て(全10室)ワンルームアパートを
今回、この様な
リニューアル致します。
主となる入居対象者(ターゲット)は、これ迄
同様"学生さん"であります

ミニミニさんの尽力により、既に現入居者の皆様
との立退き交渉・各種手続きの方も順調に進んで
おり、予定としましては、来年の4月頃を目処に
既存アパートの取り壊しに着手させて頂きます。
そして
こちらが
の簡易パース。事業計画のご提案段階で、I家の
皆様に計画建物のフォルムのみを確認して頂く為
だけに、無着色の状態(つまりモノクロ状態)で
ご提示したところ
色もこのまんま"まっ白"でイイじゃない
と、アレコレ配色を考える前に、思いのほか気に
入って頂いてしまいました

ということで、早くも今回の建物のベースカラー
は、白色でデザインを進めることになりました。
建物の完成予定は、再来年の春なので、まだまだ
先ではありますが、かなり目立つ建物になる事は
間違いありません
I様、本日は誠にありがとうございました
今回の計画は、少しだけ長丁場とはなりますが
何卒、宜しくお願い致します