また新たなベリアス賃貸住宅新築プロジェクトが
本格始動することとなりました
。
10月26日

(天気も最高でした
)
春日井市の地主であるO様の会社事務所に伺い、
賃貸住宅建築計画の工事請負契約を締結させて
頂きました
。

今回のO様の事業計画は、市内出川町に所有して
みえる賃貸アパートの老朽化に伴う建替え事業で
あります。
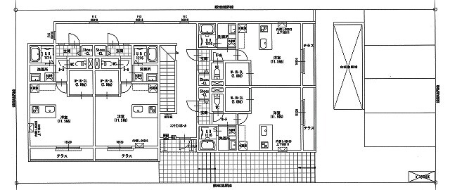
【O様新規計画概要】
敷地面積:358.67㎡(108.52坪)
建築面積:184.95㎡
延床面積:331.82㎡
木造2階建 共同住宅
学生向1R(33.12㎡/戸)全8戸

全室角部屋設計で、居室の広さも11.5帖+
広さが2帖分あるウォークインクローゼット付
無料Wi-fi・宅配ボックス・オートロック式扉・
エアコン等、仕様設備面も充実しております
。
外観のカラーデザインはこれからです
。

建築敷地の南側は公園
。しかも、敷地の高さが
接する道路面からかなり高い位置となる為、完成
後の見映え・ロケーション共に、かなり

。
ここにお洒落~なアパートが建てば、かなり目を
ひくこと間違いなしであります


着工自体は来年、そして、完成は再来年の春
の
予定となりますが、(毎度の事ながら)1年半後
なんて
あっという間であります。その間にやる
べきこと・やれること等々満載です
。
O様、本日は誠にありがとうございました
。
今後、アレコレ忙しくなりますが、何卒、宜しく
お願い致します。必ずや素敵なアパート
を完成
させますので、どうぞご期待下さい
。
また、今回のご縁を繋いで頂きました㈱ミニミニ
春日井店の鈴木店長様にも心より感謝御礼を申し
上げます
。ありがとうございました
引き続き、宜しくお願い致します
。
本格始動することとなりました
10月26日
春日井市の地主であるO様の会社事務所に伺い、
賃貸住宅建築計画の工事請負契約を締結させて
頂きました

今回のO様の事業計画は、市内出川町に所有して
みえる賃貸アパートの老朽化に伴う建替え事業で
あります。

全室角部屋設計で、居室の広さも11.5帖+
広さが2帖分あるウォークインクローゼット付
無料Wi-fi・宅配ボックス・オートロック式扉・
エアコン等、仕様設備面も充実しております

建築敷地の南側は公園
接する道路面からかなり高い位置となる為、完成
後の見映え・ロケーション共に、かなり
ここにお洒落~なアパートが建てば、かなり目を
ひくこと間違いなしであります

着工自体は来年、そして、完成は再来年の春
予定となりますが、(毎度の事ながら)1年半後
なんて
べきこと・やれること等々満載です
O様、本日は誠にありがとうございました
今後、アレコレ忙しくなりますが、何卒、宜しく
お願い致します。必ずや素敵なアパート
させますので、どうぞご期待下さい
また、今回のご縁を繋いで頂きました㈱ミニミニ
春日井店の鈴木店長様にも心より感謝御礼を申し
上げます
引き続き、宜しくお願い致します