2月20日
PM
この日、ベリアス事務所に施主I様ご家族を
お越し頂き、まもなく着工を迎える賃貸住宅
の外観デザイン(意匠)や細かな仕様設備等
の内容に関する打合せを行いました
。

私共チーム・ベリアスとの新築事業としては
今回の計画で5棟目(ご自宅の建替え含め)
となりますI様。本当に長きに亘り、お付き
合い頂き、お世話になっております(感謝)。

そんなI様の今回の新たな事業計画の内容は
以下
の通りです。
【計画概要】
築古家屋(戸建住宅)の建替え
【敷地概要】
建築地:名古屋市西区香呑町1丁目
敷地面積:125.61㎡(38.01坪)
【建築概要】
木造3階建賃貸住宅 計2世帯
建築面積: 75.11㎡(22.73坪)
延床面積:211.39㎡(63.97坪)
タイプⅠ:100.46㎡(30.40坪)
タイプⅡ:110.95㎡(33.57坪)
間取りの種別は、2LDK+S…と言って
良いのか、3LDKと言った方が良いのか…
(下
の間取図をご覧下さい)
ビルドインタイプ駐車場:各戸1台


ベリアスとの建築が5棟目ともなると、もう
”慣れたモノ”というか”普通の建築計画”
になる筈もなく(良い意味で)
、今回も
I様からのプランに関するご希望や依頼内容
の方は、”なかなかの我がままっぷり”

でした(I様、覚悟はしてましたよ
)
で
最終的に(打合せを重ねてきた結果)…
計画敷地は、約38坪なんですが、そこに…
この様な
3階建…なのに各部屋の専有面積
は、戸建住宅並みの広さがある重ね建て賃貸
住宅を建築する事になりました
。

賃貸仲介会社の方々が、入居募集の際に賃貸
情報のポータルサイトに間取りを登録される
訳ですが、当物件の間取り入力をされる際に
は、”四苦八苦するであろう難解な間取り”と
なっております


。

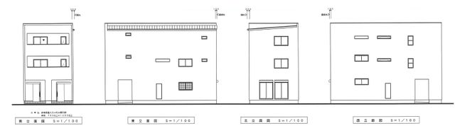
既存建物の解体撤去工事の方も先日完了し、
間もなく着工ということで、いよいよ建物
の外観デザイン(使用する外壁材の選定・
貼り分けデザイン)を確定する段階となり
この日の打合せとなりました
。
全体のカラーイメージについて、ご夫婦の
間で、意見の相違(好みの違い)等も当然
ありまして、これまでに色んなパターンの
外観イメージを作成し、比較検討して参り
まして、以下の4種のサイディングを部分
的に貼り分けてデザインを完成させていく
ことになりました
。

今回、建物のカラーデザインに於けるメイン
カラー(色目・柄)は…
ズバリ
”赤錆色(
右から2番目)”で
あります。
一瞬”木目調”に見えるかもしれませんが
違うんです。赤錆色なんです


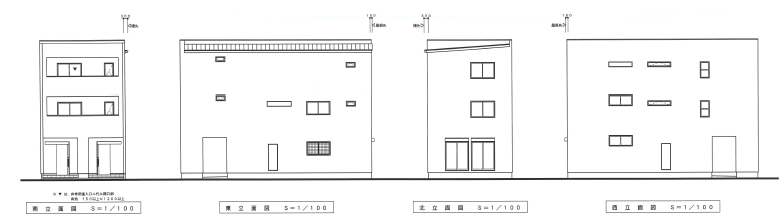
これらの外壁材を建物の何処の部分に、また
どの様に貼り分けていくのか、ということで
今現在も尚、皆で思案中であります
。

使う(貼る)場所を少し変えたり、貼る面積
を増減させるだけで、建物のイメージが全然
変わってきます
。

例えば
このパターンと
このパターン違い
って解りますか
(この他にも、微妙~に
貼り分けパターンを変えたパースを作成済
)

さてさて、最終的に、どの様な外観デザイン
に落ち着くでしょうか

。近日中には
まとまる”予定
”です
I様、引き続き、宜しくお願い致します
。
この日、ベリアス事務所に施主I様ご家族を
お越し頂き、まもなく着工を迎える賃貸住宅
の外観デザイン(意匠)や細かな仕様設備等
の内容に関する打合せを行いました

私共チーム・ベリアスとの新築事業としては
今回の計画で5棟目(ご自宅の建替え含め)
となりますI様。本当に長きに亘り、お付き
合い頂き、お世話になっております(感謝)。

そんなI様の今回の新たな事業計画の内容は
以下
【計画概要】
築古家屋(戸建住宅)の建替え
【敷地概要】
建築地:名古屋市西区香呑町1丁目
敷地面積:125.61㎡(38.01坪)
【建築概要】
木造3階建賃貸住宅 計2世帯
建築面積: 75.11㎡(22.73坪)
延床面積:211.39㎡(63.97坪)
タイプⅠ:100.46㎡(30.40坪)
タイプⅡ:110.95㎡(33.57坪)
良いのか、3LDKと言った方が良いのか…
(下
ビルドインタイプ駐車場:各戸1台


ベリアスとの建築が5棟目ともなると、もう
”慣れたモノ”というか”普通の建築計画”
になる筈もなく(良い意味で)
I様からのプランに関するご希望や依頼内容
の方は、”なかなかの我がままっぷり”
でした(I様、覚悟はしてましたよ
で
計画敷地は、約38坪なんですが、そこに…
この様な
は、戸建住宅並みの広さがある重ね建て賃貸
住宅を建築する事になりました

賃貸仲介会社の方々が、入居募集の際に賃貸
情報のポータルサイトに間取りを登録される
訳ですが、当物件の間取り入力をされる際に
は、”四苦八苦するであろう難解な間取り”と
なっております

既存建物の解体撤去工事の方も先日完了し、
間もなく着工ということで、いよいよ建物
の外観デザイン(使用する外壁材の選定・
貼り分けデザイン)を確定する段階となり
この日の打合せとなりました
全体のカラーイメージについて、ご夫婦の
間で、意見の相違(好みの違い)等も当然
ありまして、これまでに色んなパターンの
外観イメージを作成し、比較検討して参り
まして、以下の4種のサイディングを部分
的に貼り分けてデザインを完成させていく
ことになりました

今回、建物のカラーデザインに於けるメイン
カラー(色目・柄)は…
ズバリ
あります。
違うんです。赤錆色なんです
これらの外壁材を建物の何処の部分に、また
どの様に貼り分けていくのか、ということで
今現在も尚、皆で思案中であります

使う(貼る)場所を少し変えたり、貼る面積
を増減させるだけで、建物のイメージが全然
変わってきます

例えば
って解りますか
貼り分けパターンを変えたパースを作成済

さてさて、最終的に、どの様な外観デザイン
に落ち着くでしょうか
まとまる”予定
I様、引き続き、宜しくお願い致します